Działki stanowią przedmiot własności i wieczystego użytkowania Powiatu Bocheńskiego, tj.: w księdze wieczystej nr TR1O/00092510/1 w dziale II jako właściciel figuruje Powiat Bocheński, w księdze wieczystej nr TR1O/00094635/7 w dziale II jako właściciel figuruje Skarb Państwa, a użytkowanie wieczyste wpisane jest na rzecz Powiatu Bocheńskiego.
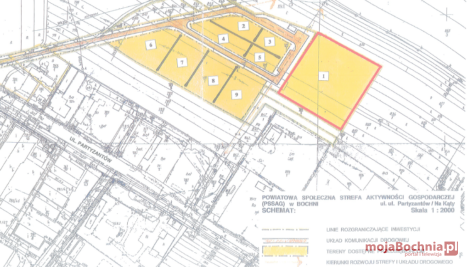
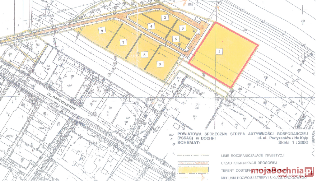
Aktualnie przeznaczona do dzierżawy zostaje nieruchomość obejmująca część działek o numerach 789/22, 789/24, 789/26 oraz część działki nr 789/20 na załączonej mapie oznaczona jako kompleks numer 1 o łącznej powierzchni 1,3612 ha.
Nieruchomość nie jest obciążona ani też nie posiada innych zobowiązań.
Cena wywoławcza miesięcznego czynszu dzierżawnego wynosi – 5 900,00 zł. Powołana kwota powiększona będzie o obowiązującą stawkę podatku VAT.
CZĘŚĆ JAWNA PRZETARGU ODBĘDZIE SIĘ w dniu 22 września 2021 roku o godzinie 11-tej w siedzibie Starostwa Powiatowego w Bochni pokój 103 (I piętro od strony ul. Kazimierza Wielkiego).
Warunkiem przystąpienia do przetargu jest wpłacenie wadium w wysokości 1000,00 zł (słownie: jeden tysiąc złotych 00/100).
Wadium należy wnieść w pieniądzu przelewem lub wpłatą na rachunek bankowy Starostwa Powiatowego prowadzony w Banku Spółdzielczym Rzemiosła, Oddział w Nowym Wiśniczu, Filia w Bochni nr 17 8589 0006 0260 0110 0150 0007 z opisem „Wadium na dzierżawę PSSAG – kompleks nr 1″ w taki sposób, aby najpóźniej w dniu 16 września 2021 r. wadium znajdowało się na rachunku bankowym Starostwa.
Pisemne oferty w zaklejonych kopertach należy składać do dnia 16 września 2021 r. do godziny 15:30 w siedzibie Starostwa Powiatowego w Bochni, ul. Kazimierza Wielkiego 31 – pokój nr 1 – Dziennik Podawczy – z dopiskiem na kopercie „Przetarg na dzierżawę PSSAG – nieruchomość nr 1″.
Przy przetargu obowiązywać będą kryteria określone w Regulaminie przetargu na dzierżawę nieruchomości stanowiących własność Powiatu Bocheńskiego.
Zarząd Powiatu w Bochni zastrzega sobie również możliwość odwołania przetargu z ważnych przyczyn niezależnych od organizatora przetargu.
Ogłoszenie o przetargu zostało podane do publicznej wiadomości poprzez wywieszenie na tablicy ogłoszeń w siedzibie Starostwa Powiatowego w Bochni przy ul. Kazimierza Wielkiego 31, oraz w Biuletynie Informacji Publicznej Starostwa Powiatowego w Bochni. Treść ogłoszenia zostaje również podana do publicznej wiadomości poprzez zamieszczenie na stronie internetowej Starostwa Powiatowego w Bochni.
Z dodatkowymi warunkami przetargu można zapoznać się w siedzibie Starostwa Powiatowego w Bochni ul. Kazimierza Wielkiego 31 pokój nr 119 lub telefonicznie pod nr 014 615 37 00 wew. 842 w godzinach od 8 00 do 15 00.

